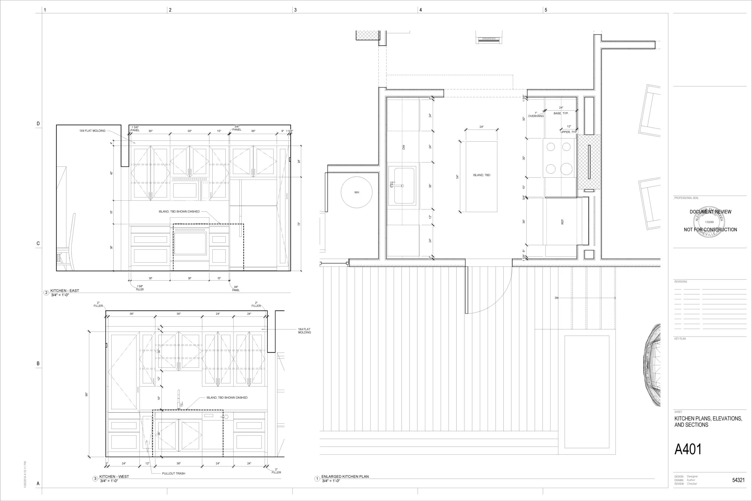
You guys! I can’t believe it’s finally here, but we’ve actually decided on a kitchen layout. I cannot tell you how many times we thought we were close, only to discover a kink in the plans. Like…that we accidentally drew the refrigerator too small in the initial plans, or that we then had it right next to a wall, or that we didn’t have anywhere for trash, or the microwave placement. It’s been such a long process, but I’m really glad we took the time to think it through very carefully. Because, I’ve done that thing before where I tell myself it will work itself out (whatever “it” is), but I’ve learned that if I can’t figure out a solution when I sit down and dedicate the time to figuring it out then I will never be able to when day-to-day life is in the way. I wanted to make sure we finalized every last detail we could think of before moving on. And, even though I’m sure something will come up that we didn’t expect, because we’ve never done this before, I know we’ll be so much more prepared for it.
Small Kitchen Remodel: The Process
Our process to get to the point was: brainstorming, starting with 4 totally different layout options, choosing one option, and then tweaking it many times to get it just right. This involved many revisions and a lot of time with the virtual reality software that Xan uses for work. I cannot tell you guys how helpful that was. If it weren’t for the VR we would have a completely different kitchen. By using it we were able to get a really good feeling of what it would be like to actually be inside the kitchen with everything to scale around you. We came to some pretty big conclusions because of it. One was that we realized the initial layout we liked best didn’t actually feel right in “person”, even though it was awesome in plan on paper. And we also found that we didn’t like the two-tone cabinets in our space. And that was something I had been set on since day one. But, for some reason it just felt too busy.
So, we landed on all white cabinets, and I’m pretty sure all white everything else. Even though we’re more than doubling our kitchen space by moving it, it’s still a pretty small room. I like the idea of using all white to help the cabinets and countertops fade into the walls, and ultimately make everything feel bigger. And then I’ll bring in interest from the accents. I’m thinking gold hardware, maybe some chrome, texture in the backsplash, and pattern in some of the countertop.
Kitchen Mood Board
I’ll do a post in the future about the budget breakdown, which appliances we’re going to go with and other materials. But, in the mean time here’s the final design board! I’ve worked on a couple throughout this process because I think they’re so valuable for dialing in on your vision for a space. And you get a good feel for how well everything will work together. Each one I made before this helped me figure out some things I wasn’t sure about. And this is one the one I’m going to use as inspiration for making all of our design decisions. It’s a huge step that I’m really excited about!
If you’re curious about what’s been happening up until now check out these posts:
Kitchen Remodel: Inspiration
Kitchen Remodel: Before and Layout Options
Kitchen Remodel: Layout Progress
Kitchen Remodel: Mood Board and Design Options
