Hi, friends! If you remember back when we bought this house you may know that we had plans to remodel the kitchen. Well, we haven’t forgotten about it. Quite the opposite, actually. We probably think about it every day because of how small our current kitchen is.
Right now we’re working on three different schemes. We’re working out the pros and cons and feasibility of each and hopefully in the next few months will decide on one. Then we’re going to price it out and hone in on a budget. I thought I’d share an update on all the schemes and what we like, don’t like, and are still unsure of about each one. Are there any that we’re missing??
Kitchen Remodel: Option #1
Pros: This one has a nice decent sized island. The work triangle is really good and will make it easy for guests to hang in the kitchen without being in the way. Lots of storage.
Cons: Lots of storage, but on the wall with the bookshelves it’s only 1 foot deep (most cabinets are 2 feet deep). Less counter space. No place for an appliance pantry.
Overall: I really like this one, I just don’t know if it’s going to be enough counter space for us. But, I think at this point it’s a front runner – I love how much storage it offers and the bookcase.
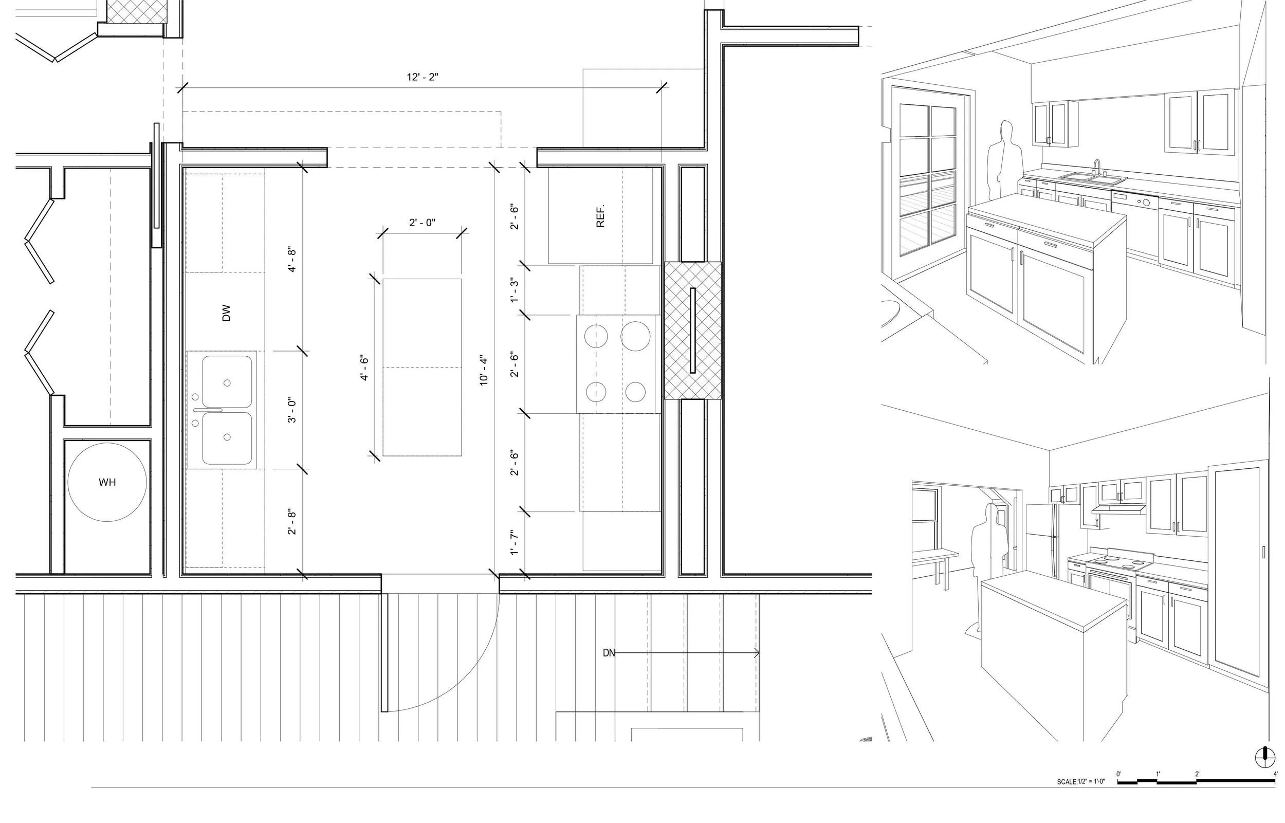
Kitchen Remodel: Option #2
Pros: Decent amount of storage and more counter space than number 1. Place for a potential appliance pantry. Still has an island.
Cons: Island is small and the work triangle is a little disjointed.
Overall: I’m concerned the smaller island (4” x 2”) is going to look dinky/weird in the middle of the room. And that the disconnectedness of the work triangle will make it hard for anyone who isn’t cooking to be in the kitchen. Because people always hangout in our kitchen that’s exactly what we’re trying to avoid.
Kitchen Remodel: Option #3
Pros: Has an island that runs parallel to the dining room which makes using the two space together even easier. Has the most counter space.
Cons: The floor plan feels a little too open. The opening to the room is very small and we think it will cause a bottleneck right there. The majority of the counter space comes from the island, but because it creates a corner we also lose a lot of that too.
Overall: I’m afraid that the bottle-necking at the entry will be too problematic and potentially a deal breaker.
As I wrote this I came up with one other scheme that could be in the running. But, Xan needs to model it first so we can take a look. We weren’t sure that the 1’’ storage in option 1 would be useful so I planned how we would use all the cabinets in that scheme and it turns out that 1’’ is large enough for most of our things. Now, I’m probably going to plan the cabinets for the other schemes to be sure we’re getting enough storage out of them. Our priorities right now are getting enough storage, more counter space, and creating a good flow from the dining room to the kitchen for guests. The other thing we’re trying to balance is re-sale value. We’re not planning on moving soon, but this definitely isn’t our forever home and we don’t want to sink a bunch of money into it that we won’t get back. So we’re trying to think about making decisions that will hopefully be pleasing to most people.
That’s where things are right now. We’ve had so much going on this summer that it’s been hard to dedicate time to the remodel. But we’re both so excited that we’re definitely going to make it happen. I CAN’T WAIT!
