Happy Monday, friends! How was your weekend? Mine was great, we got lots of stuff done around the house, and didn’t have too many plans, which I always enjoy.
One thing we did a lot of was talking about and planning the new kitchen. If you’re interested in what’s been happening up until now you can find that post here. This weekend we used the Virtual Reality equipment at Xan’s office to walk through each of our 3 schemes. It sounds kind of weird and techy, but it actually helped so much. We both went in thinking we liked one scheme in particular and were pretty sure that was it, and ended up leaving feeling the complete opposite.
With VR you basically get to feel what it would be like to walk through the space. It’s as if you’re in it and seeing what you would see if you were standing in it. This allows you to get way more of a feel for the space than looking at the design in plan or elevation alone.
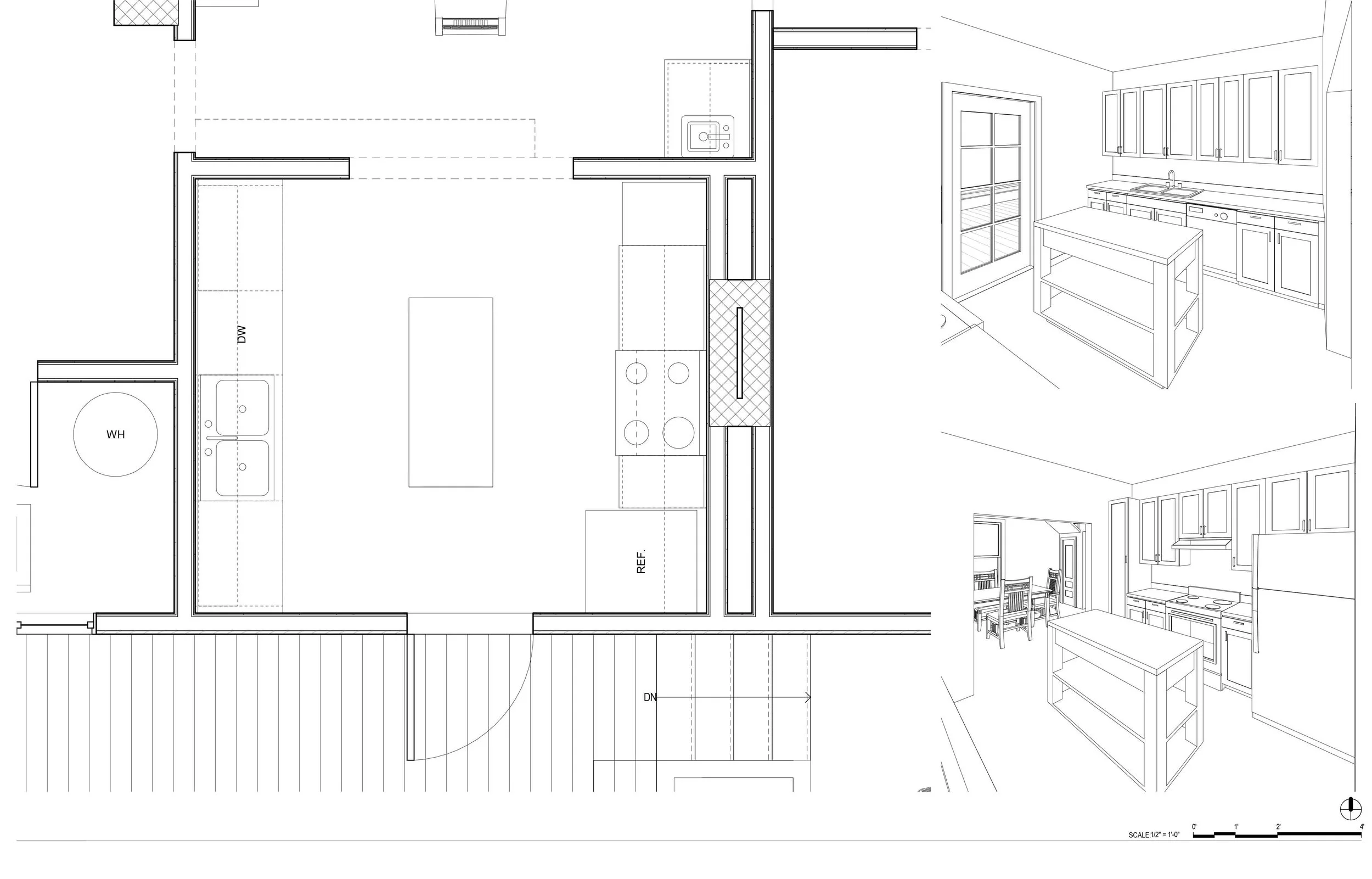
Small Kitchen Remodel Layout
Plan view
Elevation View
Kitchen Remodel Idea for a Small Kitchen
In the end we both agreed that we liked this plan the best. It’s basically option 2 from here with a couple adjustments that we felt were necessary after exploring it with through the VR goggles. Like mirroring the entire refrigerator wall and adding cabinets above the sink. We thoroughly assessed the work triangle and how well we think it will serve us. And we really tried to think through where we envision people gathering in the space. Because no matter what size our kitchen is it’s ALWAYS where people hangout and we want to be sure there’s a place for people to do that without feeling like they’re in the way.
Right now we think people will stand in the doorway between the kitchen and the dining room on the sink side. That leaves the back half of the kitchen open for who ever is cooking to move freely from the sink to the refrigerator to the stove.After this weekend we were able to choose a clear winner that we both liked the best. From here it’s time to price everything out and make sure this option is doable. The exciting part is that this whole time we’ve been thinking we’d have to open the doorway between the kitchen and the dining room to make it feel more spacious. But, after walking through via VR we both felt really liked this option the most and it was a back-up “in-case-we-physically-can’t-expand-the-opening” option. Which means we’ll save a significant amount of money on that alone. Because with this option we won’t be tearing down any walls or making any other structural modifications (except turning the window into a door) I’m feeling confident we can do this on a pretty tight budget.
Pricing out the project involves basically picking all the finishes and materials you want to use and seeing how much it adds up to. From there you can fine-tune each item to get it down to the price you want. I’m really excited about this, and at the same time know it will be a lot of work. Especially once the actual work starts because we’re planning on doing as much of it on our own as we can. But, I truly CAN’T WAIT to have a new, bigger, more function, actually usable kitchen so I know it will all be worth it.
I’m planning on doing another kitchen update post for you guys in about 6 weeks and hopefully by then we’ll have a budget, materials, and schedule for construction! Fingers crossed!
